Оборудование для предприятий
торговли, общественного питания
и пищевой промышленности

ТОРГОВАЯ ПЛОЩАДКА OBORUD.INFO

14396 предприятий | 32146 товаров

+ добавить предприятие | продукцию

главная  »  бренды  »  ТЭМЗ, ЗАО, г. Тверь

ТЭМЗ, ЗАО, г. Тверь

адрес: г. Тверь, ул. Т. Ильиной, д. 1
web: http://tvemz.ru/
год: 1936
ТЭМЗ, ЗАО, г. Тверь
Завод, основанный в 1936 году, накопил большой опыт производства и разработки специализированного оборудования для строительных, ремонтных, складских работ, а также для работ проводимых в сфере жилищно-коммунального хозяйства.

Завод располагает квалифицированными кадрами инженеров и рабочих, что позволяет быстро и эффективно реагировать на изменение рыночных условий.

Перечень выпускаемого оборудования меняется в зависимости от спроса.

В 1998 г. завод разработал и запатентовал подъемник грузоподъемностью 1000 кг, который теперь пользуется большим спросом и не имеет аналогов на территории России.

Завод выпускает такое оборудование как: строительные люльки, грузовые подъемники (100 кг, 320 кг, 500 кг, 1000 кг, 3000 кг), краны, насосы, лебедки, строительные подмости, леса, тепловентиляторы, болотоходную технику.

Продукция выпускаемая «ТЭМЗ, ЗАО, г. Тверь»:

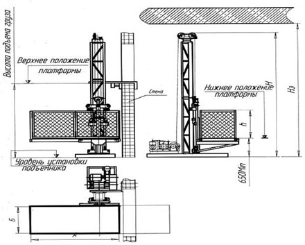
ПМГ-750 - Подъемник мачтовыйПМГ-750 - Подъемник мачтовый

Строительный грузовой подъемник ПМГ-1 предназначен для подъема и подачи через проем внутрь здания или на...

рубрика: грузовые подъемники-лифты

Помощник посетителя

Текущая

Текущая страница

Бренды: ТЭМЗ, ЗАО, г. Тверь

Выше на этой странице, вы можете ознакомиться с подробной информацией о производителе оборудования. Представлена номенклатура выпускаемого оборудования от производителя. По каждой позиции товара в нашем каталоге, есть возможность «в один клик» отправить запрос наличия и стоимости данного оборудования в Вашем регионе, всем поставщикам данного оборудования.

Вопрос-ответ
Вопрос-ответ

Если Вам не удалось найти на страницах каталога производителей оборудования искомой продукции, или возникли другие вопросы – оформите заявку, укажите вашу потребность и получите бесплатную консультацию специалиста

On-line вопрос-ответ

База данных в справочной службе Oborud.info намного обширней, информация предоставляется ОПЕРАТИВНО и БЕСПЛАТНО!!!

Переходы
Быстрые переходы

В начало брендов

Добавить оборудование

Поиск
Поиск в каталоге брендов


* - данный вид поиска не учитывает склонение окончаний слов,
     поисковый запрос не менее 4 символов


Warning: fopen(../cashfolder/_banners_php): failed to open stream: No such file or directory in /var/www/html/brands/_bottom.php on line 23

Warning: fopen(../cashfolder/_lsearch_php_from_news): failed to open stream: No such file or directory in /var/www/html/brands/_bottom.php on line 36

отправить сообщение

редактировать описание

версия для печати

статистика 1157 | 19

Это интересно

Инфо-партнеры

Яндекс.Метрика Рейтинг@Mail.ru

реклама на сайте

Портал оборудования для магазинов, ресторанов, пищевой промышленности
Администрация сайта не несет ответственности за достоверность и содержание информации, размещенной пользователями.
Права на все торговые марки, изображения и материалы, представленные на сайте, принадлежат их владельцам. Любое использование текстовых, фото, видео материалов законно только с согласия правообладателя

Портал оборудования на YoutubeTwitterВКонтакте
14+
политика конфиденциальности